КРАТКО
 
РАЗШИРЕНО
       
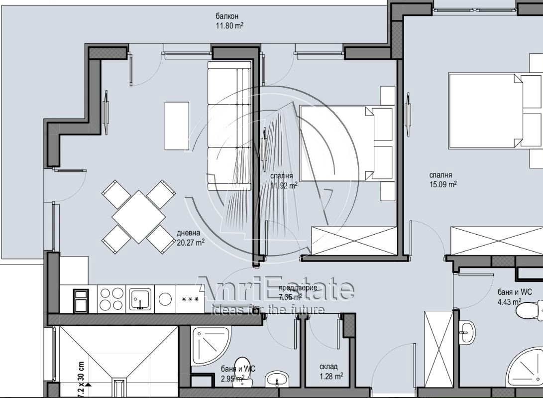
Оферта №16055, Цена: 197496 EUR
Тристаен, София, Красна Поляна,
101 кв.м, ет. 2/8, Тухла
 

Агенция АНРИ прeдлага тристаен апартамент в новострояща се гухлена сграда. АКТ 14. Луксозни общи части, асансьор.Доказан строител. МЕСТОПОЛОЖЕНИЕ: Намира се до спирки на градския транспорт, детска градина, училище. РАЗПРЕДЕЛЕНИЕ: 88,93 кв.м. застроена площ. Състои се от предверие, хол, трапезария и кухненски бокс, две спални, две бани с тоа...

Брокер: Брокер Телефон: Мобилен: 0885980205